Toggle navigation
start
profil
arbeiten
übersicht
business
wohnen
publik
kontakt
<
>
start
profil
arbeiten
business
wohnen
publik
kontakt
<
>
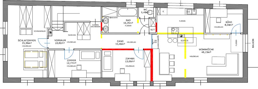
umbau obergeschoß
Raumorganisation und Einrichtungskonzept für den Umbau des bestehenden Obergeschosses in einem Vierkanthof.
<
>
BNI (Business Network International)
BÖIA (Bund Österreichischer Innenarchitektur)
Impressum
|
AGB
© Bianca Schönbichler 2016
Bianca Schönbichler MA
Sarlingstraße 19
3370 Ybbs an der Donau
Mobil: +43 676 755 50 40
info(at)bianca-schoenbichler.at